リーガル神戸元町

4.4万円~5.367万円 管理/共益費 5,860円~10,000円

兵庫県神戸市中央区北長狭通4丁目

東海道本線「元町」駅徒歩3分

阪神本線「元町」駅徒歩3分

神戸市西神・山手線「県庁前」駅徒歩4分

価格
4.4万円~5.367万円 管理/共益費 5,860円~10,000円
間取り/面積
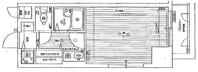
1K/22.87㎡~23.94㎡
所在地
兵庫県神戸市中央区北長狭通4丁目
築年
1998年3月(築27年)
駐車
近隣
交通

東海道本線元町」駅 徒歩3分

阪神本線元町」駅 徒歩3分

神戸市西神・山手線県庁前」駅 徒歩4分

リーガル神戸元町の基本情報

物件名
リーガル神戸元町
価格
4.4万円~5.367万円
管理/共益費
5,860円~10,000円
築年月
1998年3月(築27年)
総戸数
79戸
所在地
兵庫県神戸市中央区北長狭通4丁目
交通

東海道本線元町」駅 徒歩3分

阪神本線元町」駅 徒歩3分

神戸市西神・山手線県庁前」駅 徒歩4分

リーガル神戸元町の詳細情報

設備条件
  • 陽当り良好
  • 高齢者相談
  • 法人可
  • 室内洗濯機置場
  • フローリング
  • バルコニー
  • 都市ガス
  • 公営水道
  • 公共下水
  • エレベーター
  • 電気有
  • ガスコンロ
  • コンロ1口
  • バス・トイレ別
  • 洗面台
  • シャワー
  • エアコン
  • 暖房
  • シューズボックス
  • CS
  • BS
  • CATV
  • 光ファイバー
  • オートロック
  • 宅配ボックス
  • 防犯カメラ
  • 角部屋
  • 初期費用カード決済可
設備(その他)
    車庫 メールボックス 都市近郊 市街地が近い 周辺交通量少なめ 整備された歩道 2F以上 セキュリティ有り ガス給湯
駐車場/月額
近隣/20,000円 100m
用途地域
-
戸数
79戸 / -
取引態様
仲介
現況
空家
備考
薬や日用品を買うのに便利なドラッグストア「ココカラファイン 神戸元町店」が、こちらの物件から495mのところにあります。こちらの物件はマンションです。11階建ての建物で地域にマッチした物件。洗濯物も自然乾燥ですぐ乾く通風良好な間取りの物件。こだわりの賃貸物件をお探しの方は、ぜひ当社にお任せ下さい。豊富な賃貸物件を取り扱っているので、ご希望に適した物件のご紹介ができます。不明な点がございましたら、お気軽にご連絡下さい。

リーガル神戸元町のコメント(おすすめポイント)

薬や日用品を買うのに便利なココカラファイン 神戸元町店まで495mです。造りとデザインに関して、自信をもって情報を提供できるマンションです。こちらのマンションでは初期費用をカードでお支払いいただけます。風通しのよさが魅力のマンションです。神戸市中央区エリアにある賃貸情報のことなら、地域に密着した当社へお任せ下さい。当社は、多種多様な賃貸情報を取り扱っております。ご要望や不明な点などございましたら、お気軽にご連絡下さい。

リーガル神戸元町で募集中の物件

  1. 1階

    6.91坪 (22.87㎡)

    5万円(7235.89円/坪)

  2. 2階

    6.91坪 (22.87㎡)

    4.4万円(6367.58円/坪)

  3. 4階

    7.24坪 (23.94㎡)

    5.367万円(7412.98円/坪)

近隣の物件

  1. 神戸市中央区雲井通3丁目

    1K (23.00㎡)

    6.8万円

  2. 神戸市中央区東雲通4丁目

    1K (23.99㎡)

    6.1万円

  3. 神戸市中央区熊内町7丁目

    2DK (47.49㎡)

    8万円

  4. 神戸市中央区楠町6丁目

    1R (27.06㎡)

    6.1万円

リーガル神戸元町

お気軽にお問い合わせください

無料お問い合わせ LINEからお問い合わせ

SumoSumo元町店

078-600-0540

10:00-19:00

(休:年末年始)